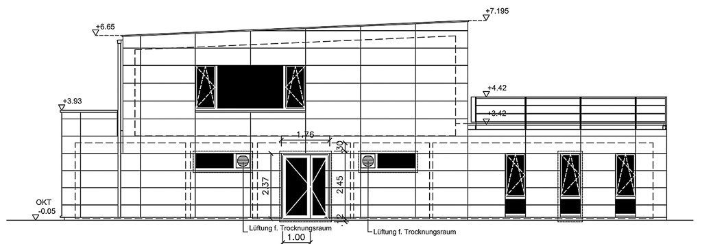
Neubau THW - Ortsverband Naumburg, Bürogebäude und Kfz-Halle

Neubau THW-Ortsverband Naumburg (Saale), Bürogebäude und Kfz-Halle
  • Weiterentwicklung Musterplanung THW für den Standort Naumburg (Saale)
  • Gründächer mit PV-Anlage
  • Barrierefreiheit
  • Regenwasserrückhaltung
  • Luft-Wärmepumpe
  • nachhaltiges Bauen; BNB-Zielwert: Silberniveau
  • Bauherr: öffentlich
  • Entwurfs- und Genehmigungsplanung
  • Ausführungsplanung
  • Planung: 2022 - 2024
  • LP 1-5
Farb- und Materialkonzept Bauvorhaben Neubau THW-Ortsverband Naumburg (Saale)
Bemusterung THW | Tafel 1 Bemusterung THW | Tafel 2